Yantram Architectural Design Studio offers professional CAD drafting services, specializing in detailed architectural plans, 3D modeling, and design visualization.




Projects
Employees
Clint
Benefits of CAD Outsourcing Services, CAD Design or CAD drafting with Yantram Studio- Assured Business Continuity & long term support - Pricing Models: Hourly, Fixed Per Project or Monthly Resource Based - On demand quick turnaround time on your projects - We are committed to OUR company standards or AIA standards - We over-deliver our CAD design and CAD Drafting Services to ensure every client's need is met
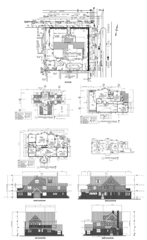
About UsYantram Studio Established in 2004, Yantram has since produced hundreds of projects spanning from Architectural CAD Drafting Services and Mechanical Engineering Design work to Industry Giants in all sectors.Yantram Studio is specialized in 2D CAD drafting services, CAD design and CAD Conversion requirements. Our services proves the trust clients keep on them by delivering high-end CAD drafting services like HVAC drafting, Architectural CAD drafting from the highly proficient and skilled team of CAD professionals that are experts in CAD design and Auto CAD drafting process.
Paper to CAD Conversion
SKETCH TO CAD CONVERSION
Image TO CAD CONVERSION
PDF TO CAD CONVERSION

antram Architectural Design Studio provides CAD conversion services with competitive drafting rates. Our expert team ensures precise conversion of sketches, PDFs, and blueprints to detailed CAD files at affordable prices










